Architects based in Melbourne with over 30 years experience designing new homes, renovations, multi residential apartments, through to commercial office and health developments throughout Victoria.
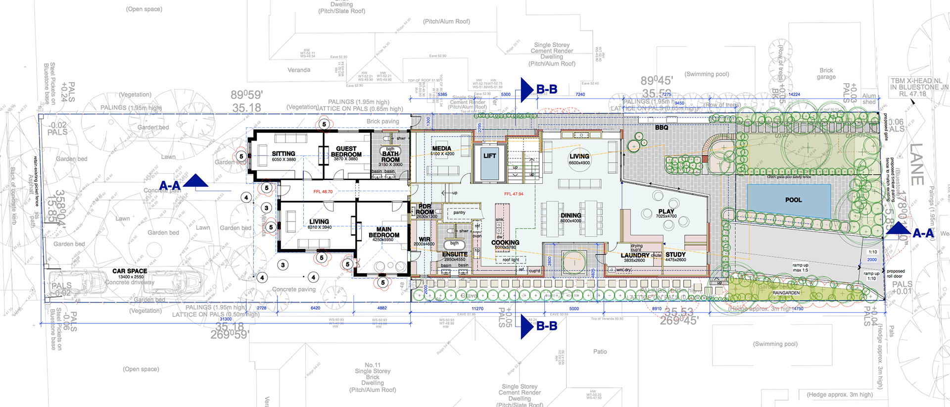
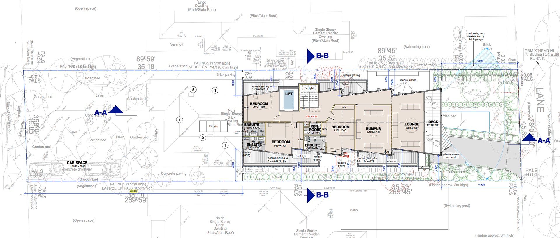
GLENDEARG GROVE RENOVATIONS & ADDITIONS MALVERN
Renovation & Addition to existing Heritage Building